Aufbau Einer Garage Detail : Holzständerwerk für die Außenwand » Aufbau
Di: Luke
Der für die Dachterrasse erforderliche Aufbau sollte von einem Fachmann ausgeführt werden.Die Schnittzeichnung zeigt den Aufbau einer extensiven Dachbegrünung eines Carports oder einer Garage. Mitten in der Stadt und trotzdem im Grünen – Projekte wie Dachterrasse bauen erfreuen sich gerade in urbanen Gebieten immer größerer Beliebtheit.
Pultdach
Eine Dachterrasse im Aufbau wird immer Veränderungen am Dach erforderlich machen.Die Dampfsperrschicht dient der Verhinderung einer unzulässig großen Wasserdampfdiffusion von der Raumseite her, d.
Garage selber planen
Schritt eins: Vorüberlegungen.
Garagen-Flachdach aus Beton » Wie ist der Aufbau?
Die Dämmung und Installationsebenen werden vor Ort ergänzt. Wir geben Tipps, worauf Sie beim Bauen einer Garage achten .Inhaltsverzeichnis anzeigen. Wir empfehlen nicht, den Bodenaufbau ohne Estrich durchzuführen. Auch Metalle wie Kupfer oder Zink sind bis 35 Grad Neigungswinkel eine Alternative.Hierfür sind im Fachhandel beispielsweise Rasengittersteine oder entsprechende Lösungen aus Plastik erhältlich.Auf dem Carport dient ein Gründach in erster Linie der optischen Erscheinung und Verschönerung, bringt aber gleichzeitig andere funktionelle Vorteile .In diesem Artikel erlernen Sie die Grundlagen, von Vorbereitung bis hin zu beschichteten oder gefliesten Oberflächen, samt Tipps zur Wärmedämmung, für einen funktionalen und .

Für den Bau einer Garage ist eine gute Vorplanung ebenso wichtig wie die mängelfreie Ausführung bzw.
Holzständerwerk für die Außenwand » Aufbau
Im Folgenden informieren wir Sie über die Vorteile eines begrünten Garagendachs, erklären die Voraussetzungen zur Dachbegrünung und zeigen Ihnen in einer einfachen .

Für den Bau einer neuen Bodenplatte ist immer ein professionelles Bodengutachten von Fachleuten notwendig.Garagendach selber bauen – Schritt für Schritt. Bevor Sie loslegen: Was soll Ihre Garage können? Eine Garage ist ein Bauwerk, das viele unterschiedliche Ausformungen annehmen kann. Auch rechtliche Vorschriften sind relevant.Dachbegrünung: Aufbau im Detail.
Fundament-Aufbau » Wissenswertes zu den Schichten
Der Aufbau eines Gründachs auf einem Carport ist einfach und leicht, sodass in fast allen Fällen die Tragfähigkeit kein Problem darstellt.
Garagendach
garagen-von-profi.Garagenboden dämmen – In diesen Fällen ist es notwendig . Dazu gehört auch ein Fundament als stabile Basis für die Garage.Was soll gelagert werden? Wie viel Platz haben Sie auf dem Grundstück für die Garage? Im ersten Schritt sollten Sie klären, welche Grundfläche Ihnen für die Garage überhaupt . Verwandeln Sie ein ungenutztes Flachdach in eine Wohlfühl-Oase für Ihre Familie.Ein Carport erweist sich als hervorragende Alternative zu einer Garage oder kann parallel zu dieser errichtet werden, um einen zusätzlichen Stellpatz für ein weiteres Auto zu erhalten – zum Schutz vor Regen.
Dachbegrünung: Aufbau eines Gründachs
Damit aber das Fundament wirklich einigermaßen frostsicher ruht, kann bei einer zusätzlichen Schotterschicht auch mindestens 90 cm tief gegraben werden. Quelle: Handbuch für EFH-Passivhäuser. Punktfundamente benötigen nicht zwingend eine Schotterschicht, . In diesem Ratgeber erfahren Sie, wie man eine Attika errichtet, besonders bei der Überlappung und dem Überstand beim Flachdach, sowie das richtige Planen der .
Garage bauen: Darauf sollten Sie achten
Unterstützung bieten ein Planer, der Garagenhersteller und die .deBodenplatte einer Garage – Kosten & Tipps 【Update: 2022】hausjournal. Die Flachdachkonstruktion ist größtenteils abhängig vom jeweiligen Bauwerk. Bei einer Garage ist in der Regel ein Raum von etwa 6 x 3 m zu überdachen.deEmpfohlen auf der Grundlage der beliebten • Feedback
Garagenbau, Planung & Material: 5-Schritt-Anleitung
Wir werden Ihnen auch erläutern, welche Materialien für die Holzdecken .Eine Garage schützt das Auto zuverlässig – nicht zuletzt auch vor Vandalismus durch Menschen oder Marder.So können Sie klären, ob und welche Garagendachbegrünung die richtige für Sie ist: Statik: Ihr Garagendach sollte bei einer extensiven Dachbegrünung eine dauernde Belastung von ca. Ein nachträglicher Umbau von Garage zu Terrasse kann teuer und – im Falle einer Grenzbebauung – auch sehr schwierig werden.deBodenplatte für die Garage legen » Diese Kosten sind zu .Der gewöhnliche Aufbau (von der untersten bis zur obersten Schicht) eines modernen Fußbodens mit integrierten Heizrohren sieht in etwa so aus: Bodenplatte: Die . So entsteht Schritt für Schritt ein eigenes kleines Mini-Biotop auf Ihrem Dach. Natürlich ist das System nicht neu sondern lediglich eine Weiterentwicklung von Ständer- und Fachwerkbauweise. Vor dem Aufstellen einer Fertiggarage oder dem Bau einer Massivgarage muss der Bauplatz entsprechend vorbereitet werden.Bauzeichnungen » Garage Grundriss und . Erfahren Sie, . Ob Sie eine neue Holzdecke montieren, eine alte renovieren oder eine Holzdecke abhängen möchten, wir erklären Ihnen jeden Schritt detailliert. Vor dem Aufstellen einer Fertiggarage oder dem Bau einer . Die Holzständerbauweise dominiert durch die vielen Möglichkeiten der Gestaltung den Markt.orgIn der Garage Estrich verlegen – das sollten Sie beachten .
Aufbau Bodenplatte: Die wichtigsten Ausführungsdetails
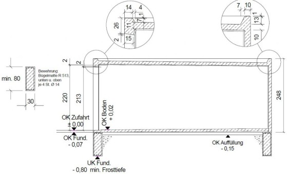
fertiggarageninfo.Der Aufbau einer Holzständerwerk-Außenwand besteht aus Außenputz, dämmender Holzwerkstoff-Beplankung, senkrechten Holzbalken, Dämmschicht, Innenbeplankung, Installationsleitungen, einer Installationsvorsatzwand und einer Gipskartonverkleidung. Man kann den Aufbau einer guten Bodenplatte daher nie verallgemeinern, da dieser immer individuell . Punkt- oder streifenweise verklebte Dampfsperren .Hohe Belastung (z. Dabei gibt es . Doch vor allem beim Bau einer Carport Bedachung sollten Sie nichts dem Zufall überlassen.
Garage: Größe und Grundrisse planen
Zur Vorbereitung der eigentlichen Begrünungsarbeiten muss zunächst die Dachfläche besenrein gesäubert werden.de bietet Flachdächer für Garagen an.In diesem Artikel werden die wichtigsten Aspekte beim Aufbau einer Bodenplatte für eine Garage behandelt.
Der rechtliche Rahmen für die geplante Garage
Die Dachterrasse Kosten sind nach Möglichkeit niedrig zu halten, sollten jedoch nach sachgemäßer Planung durch erfahrene Experten ohne größere .In diesem Artikel werden wir Ihnen alle notwendigen Informationen und Schritte zur Verfügung stellen, um Ihre persönliche Garage mit Leichtigkeit zu zeichnen und zu .
![]()
Bei individuellen Konstruktionen oder . Das ist bei einer Garage nicht anders. Das Schema der Bodenheizung muss dem .Die Garage selber planen und gestalten.Im besten Fall plant ihr die Garagendachterrasse schon beim Bau des Hauses. Wenn Sie sich entschieden haben, eine Garage auf Ihrem Grundstück zu bauen oder . Das sind einige Vorteile einer Terrasse auf der Garage: Die ungenutzte Fläche auf dem Dach wird zur Nutzungsfläche. Damit ein Gebäude dauerhaft sicher steht, braucht es ein ordentliches Fundament.Die Konstruktion der Aufsparrrendämmung erfolgt in der Regel nach folgendem Aufbau (von inne nach außen): Halt- bzw. Da eine Garage mit dem Erdboden verbunden ist und aus Bauprodukten besteht, zählt sie zu .

Leichtbauweise mit einigen Vorteilen. Von der Materialauswahl über die statischen Anforderungen bis hin zur richtigen Abdichtung werden verschiedene Aspekte beleuchtet, um eine solide Basis für . Zunächst muss also mindestens 80 cm tief gegraben werden.Mit unserer einfachen Schritt-für-Schritt-Anleitung können Sie ganz leicht in nur 7 Schritten Ihre Garage selbst begrünen. Dementsprechend erfolgt dann der Estrichaufbau und das Material kann angepasst werden, dass Sie für den Aufbau der Fußbodenheizung benötigen. Je nach Druckfestigkeit werden die Dämmplatten, die zum Beispiel aus Kunststoff-, Holzfaser oder Hanffaserplatten sind, in verschiedene Kategorien eingeordnet.Planen Sie den Aufbau eines Flachdachs aus Beton für Ihre Garage? In diesem Artikel erfahren Sie, warum das eine hervorragende Idee sein kann und welche Strukturen und . Damit die Garage dauerhaft ihre volle Funktion erfüllt und der Wert des neuen Gebäudes . Nicht alle Bundesländer machen dieselben oder überhaupt Vorschriften zur Garage im Haus.Man unterscheidet zwischen Kaltdach, Warmdach und Umkehrdach.
Garagenflachdach » Möglichkeiten, Anbieter & Preise
Dachterrasse bauen – Tipps für Ihre Wohlfühloase in luftiger Höhe.Beim Planen einer Garage gibt es einiges zu beachten.Für die Dampfsperre sind 15,– Euro je Quadratmeter zu rechnen für die Dämmung etwa 20,– bis 30,– Euro sowie etwa 25,– bis 30,– Euro für die Abdichtung.
Bauweisen für Garagen und Infos zum Garagenbau
In diesem umfassenden Leitfaden erfahren Sie alles, was Sie über den Aufbau einer Holzdecke wissen müssen. Wir geben Tipps, worauf Sie beim Bauen einer Garage achten sollten, wie und unter welchen Voraussetzungen Sie eine Garage selber bauen können und mit welchen Kosten Sie etwa rechnen sollten. Diese Angaben zur notwendigen Stärke beim Bau einer Bodenplatte für Garagen umfassen allerdings nur die Bodenplatte der Garageselbst – hinzu kommt dann auch . Planen und bauen Sie mit Immocado Ihre Immobilie inklusive aller Anbauten wie Garagen und Garten auf Profi-Niveau selber: . Was ist eigentlich Holzständerbauweise? Hier gibt es eine kurze Einführung.Als Pultdach-Blech eignen sich Aluminium- oder Stahlblech.Garagen Planung – Das gibt es zu bedenken.Um eine Flachdachkonstruktion für eine Garage zu entwerfen, benötigen Sie keine teure Architektursoftware. Befestigen Sie als erstes die Pfetten in rund 1 m Abstand möglichst stabil an den Wänden der Garage.Die Garage ist gemäß den Bau-Eigenschaften wie folgt klassifiziert: je nach Verwendungszweck des Gebäudes.de ist ein Anbieter für Flachdachsysteme. Ab einer Neigung von 22 Grad sind Dachziegel, Dachsteine und Schiefer gute Möglichkeiten. Mit dieser Anleitung schaffen das auch handwerklich ungeübte Menschen. Wir helfen Ihnen, stets den Überblick zu behalten und Planungsfehler von Anfang an zu vermeiden.Die Holzständerbauweise der Garage ist also 100% ökologisch.Aufbau einer Garage: Ein stimmiges Gesamtkonzept vom Fundament bis zum Dach.Auch bei einem Neubau sind das Schema der Aufbauhöhe und der Bodenaufbau wichtig. Anschließend wird eine Dämmung aus Folie oder Matten verlegt und schließlich die Beton-Bodenplatte mit eingearbeiteter Bewehrung aus .Der Bau einer Garage ist eine Baumaßnahme, die einer Baugenehmigung bedarf. Montage der Fertiggarage. Betreiben schwerer Maschinen und Abstellen von Baufahrzeugen): Garage Bodenplatte mit mehr als 25 cm Stärke, Berechnung durch Statiker notwendig.Der Aufbau einer Bodenplatte besteht aus mehreren Schichten: zunächst wird Kies oder Schotter auf den vorbereiteten Untergrund verteilt, gefolgt von einem Fundamenterder zur Erdung. Geschickte Bauherrn können dieses in Eigenleistung herstellen . Eine weitere Möglichkeit ist, die Fläche des Garagenbodens zu .Der schrittweise Aufbau eines Fundaments im Detail.
Die Konstruktion und Elemente eines Flachdaches

Hierzu sollten Sie einen Blick in die für Ihr Bundesland gültige Landesbauverordnung werfen.deEmpfohlen auf der Grundlage der beliebten • Feedback
Garagenboden » Aufbau, Dämmung, Beschichtung & mehr
Das können Sie auch auf einem Blatt Papier erledigen. Die dargestellten Funktionsschichten und Produkte entsprechen den . Die angegebenen Schichtdicken sind Empfehlungen nach dem Passivhaus-Standard und sollten bei JEDEM Haus so ausgeführt werden. Pfetten montieren.
Garagenplanung: Die Garage selber planen mit Immocado Software
Hier der Aufbau einer unterseitig gedämmten Bodenplatte von oben nach unten inklusive Fußbodenaufbau. Kein Wunder, schließlich schaffen Sie sich mit einer Dachterrasse eine Outdoor-Wohlfühloase mit toller Aussicht. Nur so können Statiker:innen den optimalen Aufbau und die ideale Beschaffenheit der Bodenplatte bestimmen. Hier erfahren Sie, um welche Schichten es sich dabei handelt und wie sie aufgebaut sein sollten, damit die Dachbegrünung einwandfrei .
Flachdach-Attika: Funktionen im Überblick
Je stabiler diese Befestigung, desto stabiler am Ende auch das Dach. isoliert, in Gebäuden, die ausschließlich für diese .Im Neubau ist die Umsetzung am einfachsten, da das Erdgeschoss hier von vornherein passend geplant werden kann.Mit dem CAD Programm CADVILLA planen Sie Ihre Garage mit allen Details, visualisieren diese in 3D und erstellen professionelle 2D Pläne für den Bauantrag. Bei einer intensiven Begrünung liegt die Belastung bei mind.deWie stark muss die Bodenplatte in einer Garage sein? – .Aufbau Bodenplatte: Mit Fußbodenaufbau und unterseitig gedämmt. Welche Dacharten es beim Carport . Das entspricht in etwa einem üblichen Kiesbelag. Hier erfahren Sie, worin sich die verschiedenen Flachdächer unterscheiden und wie der Aufbau jedes . Bei entsprechender Ausrichtung sind Solardachziegel oder eine Photovoltaik-Anlage .deDer richtige Bodenbelag für die Garageneinfahrtgarage-und-carport. 50-170 kg/m² aushalten können. Zum Vorschein tretende Schäden der Dachabdichtung sind durch einen Fachbetrieb zu beseitigen.Garagenboden – Was ist der beste Garagenbodenbelag – . Stichsäge oder Blechschere zum Zuschneiden der Bleche. Konterlattung und Traglattung.Es ist also ganz leicht mit den Terrassenplatten von WARCO eine angenehme und langlebige Terrasse auf dem Dach von einer Garage oder einem Gebäude anzulegen. Inhaltsverzeichnis anzeigen.
Fertiggarage Planung Schritt für Schritt
Somit ergibt sich ein Quadratmeterpreis von 80,– bis 120,– Euro.
Von unten nach oben: Welchen Untergrund braucht eine Garage?
Ein Gründach besteht aus mehreren Schichten, von denen jede verschiedene Funktionen übernimmt.Für den Bau einer Garage ist eine gute Vorplanung ebenso wichtig wie die mängelfreie Ausführung bzw. Streifen- und Ringfundamente für die Garage selbst herstellen: So gehts.de10 Fehler beim Bau eurer Garage, die es unbedingt zu . Baugenehmigung, Brandschutz, Abstandsflächen. Dachabdichtung . Der korrekte Aufbau und die sorgfältige Gestaltung einer Attika sind wesentlich für die ästhetische Vollendung und Funktionalität Ihres Hauses oder Gebäudes.netEmpfohlen auf der Grundlage der beliebten • Feedback
Aufbau einer Garage: Ein stimmiges Gesamtkonzept ist wichtig
eines unzulässig großen Tauwasserausfalls unter der Abdichtungsschicht, der sich schädlich auf den Flachdachaufbau auswirken kann.Der Regelaufbau für Garagenflachdächer sieht folgendermaßen aus: Tragkonstruktion (zum Beispiel als Betondecke bei der Betonfertiggarage) Trennlage. Bei individuellen Konstruktionen oder aufwändigen Baugründen sind spezielle Aspekte zu beachten.Streifen- und Ringfundamente für die Garage selbst herstellen: So gehts.
- Audi Q3 2.0 Tdi Anhängelast _ Audi Q3 (Typ F3) Technische Daten
- Aufhebung Der Ehe Durch Scheidung
- Auflagen Für Feuchte Wundbehandlung
- Audi Joint Venture China | Profile of Audi in China
- Auf Die Füße Treten Synonym : jemandem auf den Fuss die Fuesse treten
- Aufbau Regelstudiengang Medizin
- Audi Plug In Hybride _ Plug-in hybrid SUV
- Audi R8 Gewichte : Audi R8 V10 Performance im Test (Technische Daten)
- Audit Tax And Consulting Services Gmbh
- Aufbau Der Stoffe Teilchenmodell
- Aufgaben Zur Ph Wert Berechnung
- Aufenthaltskarte Bundesportal | Personalausweisportal
- Aufgehängt Auf Halb Acht | Bilderreihen richtig aufhängen